Η αρχική λατρεία στον χώρο της Ελευσίνας ήταν υπαίθρια και αργότερα εξελίχθηκε με την οικοδόμηση ναού. Το παλαιότερο σωζόμενο κατάλοιπο είναι το επονομαζόμενο Μέγαρο Β που χρονολογείται στους ΥΕ ΙΙ χρόνους. Κατά την ΥΕΙΙΙΒ φάση το κτίριο επεκτάθηκε προς βορρά

Φαίνεται ότι κατά τη γεωμετρική περίοδο έλαβαν χώρα τροποποιήσεις του κτηρίου, ωστόσο τα αντίστοιχα κατάλοιπα είναι ελάχιστα.



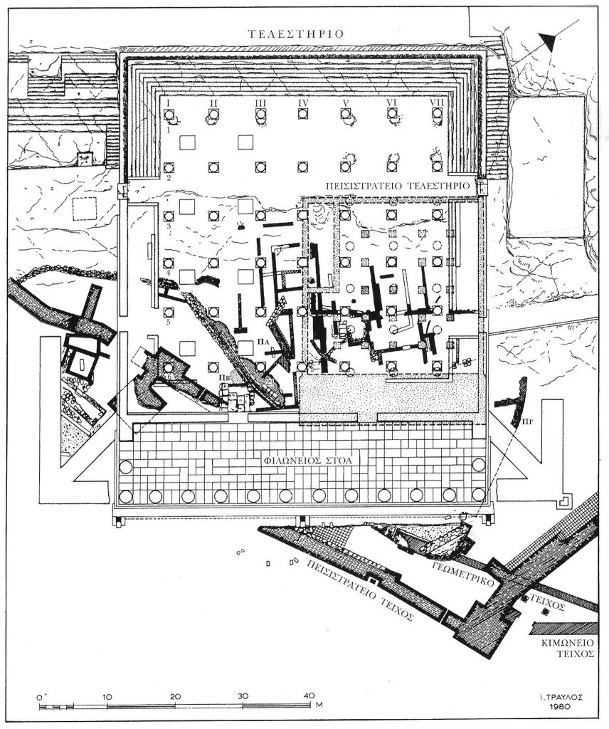
Μετά την προσάρτηση της πόλης της Ελευσίνας από τους Αθηναίους και την συμπερίληψη των Μυστηρίων στις αθηναϊκές γιορτές, στα χρόνια του Σόλωνος (αρχές 6ου αι. π.Χ.) κτίστηκε ένας νέος επιμήκης ναός, στην θέση του υπάρχοντος, ενώ η αυλή επεκτάθηκε με επιχώσεις που κάλυψαν τα γεωμετρικά κατάλοιπα. Όπως μαρτυρούν τα κατά χώραν τεκμήρια, η βάση τόσο του νέου αυτού ναού (πρώιμου αρχαϊκού Τελεστηρίου) όσο και του αναλημματικού τοίχου που τον όριζε προς νότον κατασκευάστηκαν με το λέσβιο δομικό σύστημα


Το ιερό επεκτάθηκε πάλι την εποχή του Πεισίστρατου και των διαδόχων του. Το νέο κτήριο αποτελούνταν πλέον από μία μεγάλη υπόστυλη αίθουσα με 25 εσωτερικούς κίονες, προστώο στα Α και το Ανάκτορον στην ΝΔ γωνία, στην ίδια περίπου θέση με τον μυκηναϊκό ναό και (πιθανότατα) και το ανάκτορο του σολώνειου ναού.

Στην τελική του μορφή, το Τελεστήριο των ρωμαϊκών χρόνων είχε διαστάσεις 54,50Χ56,00μ.. Εσωτερικά είχε 36 κίονες ενώ περιμετρικά διαμορφώνονταν κερκίδες, οι οποίες στη δυτική πλευρά είναι λαξευμένες στον βράχο, ενώ στη βόρεια, νότια και ανατολική πλευρά ήταν κτισμένες από ασβεστόλιθους. Στα ανατολικά οικοδομήθηκε δωδεκάστυλο προστώο, η στοά του Φίλωνος ή Φιλώνειος Στοά. Οι δύο κύριες είσοδοι στον ναό βρίσκονταν στα ανατολικά. Η πρόσβαση στην τεράστια αίθουσα γινόταν από τέσσερις ακόμη πλάγιες θύρες – εισόδους: δύο στην βόρεια και δύο στη νότια πλευρά. Στη δυτική είσοδο της βόρειας πλευράς κατέληγε η Ιερά οδός.
